logofff
logofinsterbusch
Unsere Sauna-Informationen

Finsterbusch-Hotline
Ihre Kundenberaterin
Anke Della-Bella


Zur mobilen Version von www.sauna-pool.de
www.sauna-pool.de
für Tablet + Smartphone


Ferien-Chalet in der französischen Dordogne!

Ferien-Chalet in Frankreich https://www.joiedusilence.com/de/
Unser erstes Saunahaus in Frankreich lädt Sie ein in ein idyllisch gelegenes Domizil in der Nähe von Bordeaux.


Besuchen Sie unsere Schwesterseiten:

Gartensauna-Kundenprogramm Bayreuth - Sauna der Familie Hagen


Die Gartensauna der Familie Hagen

- PLZ-Bereich 95... - Nähe Bayreuth -

(weitere Infos zu Gartensauna-Häusern der Firma Finsterbusch finden Sie hier...)


zurück zur Auswahl

- Gartenhaus-Sauna „Massiva-58-Outdoor“ -

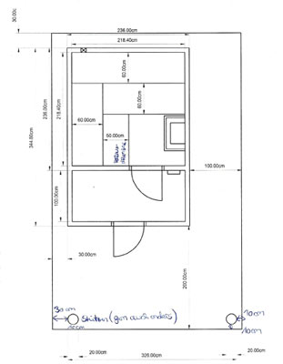
Sauna-Skizze

Sauna-Grundriss der Familie Hagen   

Sauna-Foto (für weitere Fotos klicken Sie in das Bild):

Sauna-Foto der Familie Hagen

Sauna-Foto der Familie Hagen
Sauna-Foto der Familie Hagen


Außenmaß: 236 cm x 3345 cm x 260 cm (Giebelhöhe),
Satteldach mit 30 cm Dachüberstand (rechts 100 cm) und 200 cm Vordach,
mit integrierter Sauna 236 cm x 236 cm x 200 cm, 9 kW Ofen,

Besonderheiten dieser Gartensauna:

Isolierter Fußboden - 11 kW Saunaofen Harvia Legend - Steuerung Harvia Griffin CG 170 - Inneneinrichtung Exklusiv - Stützsäulen - Terrasse aus geriffelter sibirischer Lärche

------------------------

Liebe Finsterbusch-Crew,
 
 Wir möchten uns noch einmal für den reibungslosen Ablauf unseres Auftrages und die zuverlässige und einwandfreie Ausführung herzlich bei Ihnen bedanken. Sie dürfen sicher sein, dass wir Sie weiter empfehlen werden! Als Anlage füge ich Ihnen noch ein Bild vom endgültigen Haus bei das Sie gerne verwenden dürfen.

Herzliche Grüße.

-----------------------

Gefällt Ihnen dieser Grundriss? Trifft er evtl. auch auf Ihre Raumsituation zu?
Dann fordern Sie doch jetzt:

Hand  Ihr persönliches Angebot an - oder

Hand  informieren Sie sich auf unseren Saunaseiten weiter zum individuellen Saunabau - oder

Hand unten stellen Sie hier unten Ihre Kunden-Anfrage.


Meine Anfrage an Familie Hagen

Hier können Sie per e-mail oder über telefonischen Rückruf direkt mit unseren Kunden Kontakt aufnehmen, evtl. auch um einen Termin für eine Ortsbesichtigung bitten.


25. Mai 2018:

Sehr geehrte Besucher unseres Kunden-Partner-Programms,

ab dem obigen Datum trat EU-weit die neue Datenschutz-Grundverordnung (DSGVO) in Kraft. Bis zu diesem Zeitpunkt konnten Sie über ein Kontakt-Formular auf dieser Seite mit unseren Kunden im Kunden-Partner-Programm in Kontakt treten.

Seitdem werden Anforderungen an die Datensicherheit gestellt, welche für diese spezielle Möglichkeit ein sinnvolles Maß an Vorkehrungen überschreitet.

Daher bitten wir Sie bei Interesse für die obige Sauna-Variante herzlich, uns per E-Mail
- anhand der Benennung der Sauna (kopieren Sie dazu bitte auf dieser Seite oben die URL der Seite - https://www.sauna-pool.de.... - in Ihre E-Mail) sowie
- Ihrer Fragen an unsere Kunden
über Ihr Interesse an der gezeigten Kunden-Sauna zu unterrichten.

Mit dem Versand dieser E-Mail willigen Sie zugleich ein, dass Ihre freiwillig gemachten Angaben zu Ihrer Person (Name, Vorname, Anschrift, Kontaktmöglichkeit) von uns auf Grundlage des §6 Abs.1 a) DSGVO zum Zwecke der Umsetzung im Kunden-Partner-Programm so lange gespeichert und verarbeitet werden, bis sie nach Ende des Verarbeitungszweckes wieder gelöscht werden. Wir geben diese Daten an unsere Kunden zwecks Kontaktanbahnung weiter. Sie können Ihre Einwilligung zur Speicherung und Verarbeitung jederzeit unter der E-Mail: kundenprogramm@sauna-pool.de mittels eindeutig formulierten Textes widerrufen.

Wir freuen uns auf Ihre Anfrage und danken für Ihr Verständnis.


Pfeil nach oben


Gartensauna-Kundenprogramm Bayreuth - Sauna der Familie Hagen