logofff
logofinsterbusch
Unsere Sauna-Informationen

Finsterbusch-Hotline
Ihre Kundenberaterin
Anke Della-Bella


Zur mobilen Version von www.sauna-pool.de
www.sauna-pool.de
für Tablet + Smartphone


Ferien-Chalet in der französischen Dordogne!

Ferien-Chalet in Frankreich https://www.joiedusilence.com/de/
Unser erstes Saunahaus in Frankreich lädt Sie ein in ein idyllisch gelegenes Domizil in der Nähe von Bordeaux.


Besuchen Sie unsere Schwesterseiten:

Sauna-Kundenprogramm - Sauna der Familie Fiedler


Die Sauna der Familie Fiedler

- PLZ-Bereich 59... - Nähe Arnsberg-


zurück zur Auswahl

- Rundstamm-Naturhaus mit Sauna -

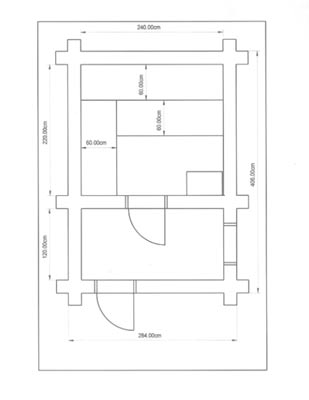
Sauna-Skizze:

Sauna-Grundriss der Familie Fiedler

Sauna-Foto (für weitere Fotos klicken Sie in das Bild):


Sauna-Foto der Familie Fiedler
 
Sauna-Foto der Familie Fiedler
Sauna-Foto der Familie Fiedler
Sauna-Foto der Familie Fiedler

Besonderheiten dieser Natur-Rundstammsauna:

Stammdurchmesser ca. 22 cm - Außentür - Fenster - Dachüberstand - Fußboden komplett - Dämmung -


Gefällt Ihnen dieser Grundriss? Trifft er evtl. auch auf Ihre Raumsituation zu?
Dann fordern Sie doch jetzt:

Hand  Ihr persönliches Angebot an - oder

Hand  informieren Sie sich auf unseren Saunaseiten weiter zum individuellen Saunabau - oder

Hand unten stellen Sie hier unten Ihre Kunden-Anfrage.


Meine Anfrage an Familie Fiedler

Hier können Sie per e-mail oder über telefonischen Rückruf direkt mit unseren Kunden Kontakt aufnehmen, evtl. auch um einen Termin für eine Ortsbesichtigung bitten.

  Ich habe auf dieser Website gesehen, dass Sie auch eine Sauna der Fa. Finsterbusch haben.
Mir wäre an Ihrer Erfahrung damit gelegen. Besonders wüsste ich gern,


Bitte antworten Sie mir per e-mail.

Mailen Sie mir bitte Ihre Telefonnummer, damit ich Sie zurückrufen kann. Bitte geben Sie mit an, wann Sie am besten erreichbar sind.

Rufen Sie mich unter der Telefonnummer zurück.

Ich würde gern bei Ihnen vorbeikommen, um mir Ihre Sauna anzuschauen und Ihre Erfahrungen zu hören.
Speziell interessiert mich:

Meine e-mail-Adresse:

                                                                    

Hinweis: Sollte sich beim Abschicken des Formulars Ihr Standard-E-Mailprogramm nicht öffnen lassen, so senden Sie uns Ihre Angaben bitte per e-mail.


Pfeil nach oben


Sauna-Kundenprogramm - Sauna der Familie Fiedler