|
|||||||||||
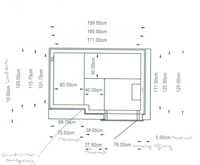
Finsterbusch Wellness-Factory, 09125 Chemnitz, Annaberger Strasse 339 - Tel.: 0371 - 77 11 222 / Fax: 0371 - 77 11 223
Letzte Änderung: 17.01.2021
Ferien-Chalet in der französischen Dordogne!

Unser erstes Saunahaus in Frankreich lädt Sie ein in ein idyllisch gelegenes Domizil in der Nähe von Bordeaux.
|
|||||||||||