logofff
logofinster  busch
Unsere Sauna-Informationen

Finsterbusch-Hotline
Ihre Kundenberaterin
Anke Della-Bella


Zur mobilen Version von www.sauna-pool.de
www.sauna-pool.de
für Tablet + Smartphone


Ferien-Chalet in der französischen Dordogne!

Ferien-Chalet in Frankreich http://lesmeygnauds.com
Unser erstes Saunahaus in Frankreich lädt Sie ein in ein idyllisch gelegenes Domizil in der Nähe von Bordeaux.


Unsere Schwesterseiten:

 

Sauna-Kundenprogramm - Eine unserer Saunen in Österreich


 
Österreich
Massivholz-Sauna in Österreich -
Tirol
 

zurück zur Auswahl

- 58 mm Massivholz-Sauna in Tirol -

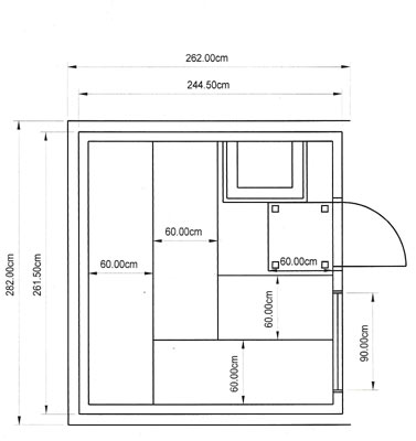
Sauna-Skizze:

Eine unserer Saunen in Österreich

Sauna-Foto (für weitere Fotos ins Bild klicken):

 

Eine unserer Saunen in Österreich

 

 

Saunagröße 262 cm x 245 cm x 220 cm (Überhöhe)

Besonderheiten dieser Sauna:

isolierter Fußboden - Glaselement - 13 kW Saunaofen Club XL - Steuerung Saunatherm VU - Leistungsschaltgerät

 


Pfeil nach oben


Sauna-Kundenprogramm - Eine unserer Saunen in Österreich