logofff
logofinster  busch
Unsere Sauna-Informationen

Finsterbusch-Hotline
Ihre Kundenberaterin
Anke Della-Bella


Zur mobilen Version von www.sauna-pool.de
www.sauna-pool.de
für Tablet + Smartphone


Ferien-Chalet in der französischen Dordogne!

Ferien-Chalet in Frankreich http://lesmeygnauds.com
Unser erstes Saunahaus in Frankreich lädt Sie ein in ein idyllisch gelegenes Domizil in der Nähe von Bordeaux.


Unsere Schwesterseiten:

 

Sauna-Kundenprogramm - Niederlande - Sauna der Familie Kaysan


 
Niederlande
Die Sauna der Familie Kaysan
 

zurück zur Auswahl

- 58 mm Massivholzsauna "Massiva" -

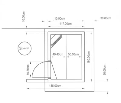
Sauna-Skizze:

Sauna-Grundriss der Familie Kaysan

Sauna-Foto (für weitere Fotos klicken Sie in das Bild):

 

Sauna-Foto der Familie Kaysan

 
Sauna-Foto der Familie Kaysan
Sauna-Foto der Familie Kayaan
Sauna-Foto der Familie Wachendorf

Saunagröße: 160 cm x 117 cm x 200 cm,

Besonderheiten dieser Sauna:

isolierter Fußboden aus 19 mm Holzdielen- Pultdach

 


Pfeil nach oben


Sauna-Kundenprogramm - Niederlande - Sauna der Familie Kaysan