logofff
logofinster  busch
Unsere Sauna-Informationen

Finsterbusch-Hotline
Ihre Kundenberaterin
Anke Della-Bella


Zur mobilen Version von www.sauna-pool.de
www.sauna-pool.de
für Tablet + Smartphone


Ferien-Chalet in der französischen Dordogne!

Ferien-Chalet in Frankreich http://lesmeygnauds.com
Unser erstes Saunahaus in Frankreich lädt Sie ein in ein idyllisch gelegenes Domizil in der Nähe von Bordeaux.


Unsere Schwesterseiten:

 

Sauna-Kundenprogramm - Eine unserer Saunen auf Mallorca


 
Spanien
Eine unserer Saunen auf Mallorca
 

zurück zur Auswahl

- Premium-Massivholzsauna "Cristallo"-

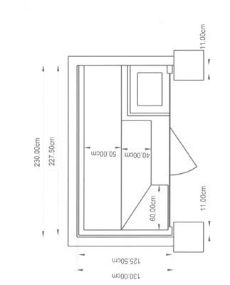
Sauna-Skizze:

Eine unserer Saunen auf Mallorca





Unsere Gartenhaus-Sauna auf Mallorca
 
Unsere Gartenhaus-Sauna auf Mallorca
Unsere Gartenhaus-Sauna auf Mallorca
Unsere Gartenhaus-Sauna auf Mallorca

Saunagröße 228 cm x 126 cm x 220 cm,

Besonderheiten dieser Sauna:

Innenverkleidung aus hochwertiger horizontal aufgebrachter Espe - Saunaofen GSK 44 - Steuerung Wavecom4 - nach hinten fallendes Pultdach - Glasfront - Farblichttherapie LED-Light-Line



Pfeil nach oben


Sauna-Kundenprogramm - Eine unserer Saunen auf Mallorca