PHPSlideshow by greg lawler at zinkwazi.com
Foto-Impressionen dieser Finsterbusch-Kundensauna.
back
[3 of 49]
next
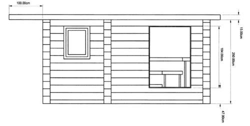
Seitenansicht mit großem Fenster.
> Bequemer Fotowechsel auch durch Mausklick aufs Foto möglich <
Fenster schließen
Impressum
-
Datenschutz